Similar Properties
Loading content...



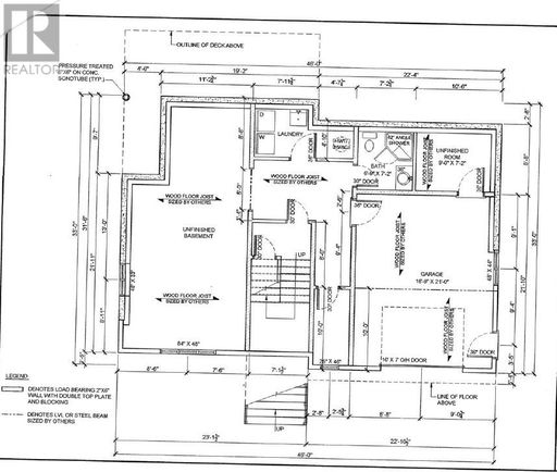
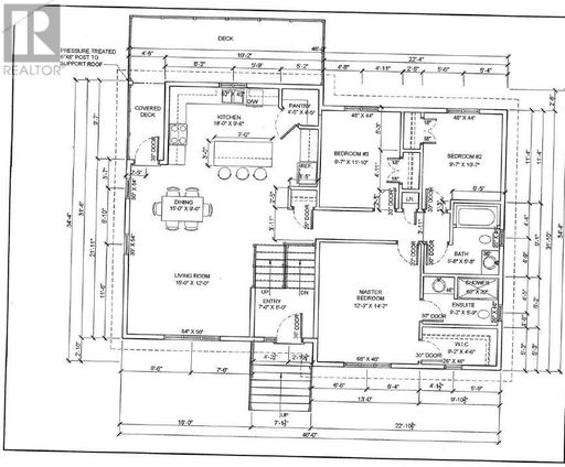
Welcome to your future home — a beautifully designed split entry that blends comfort, style, and functionality in one elegant package. This thoughtfully planned residence offers everything a modern family needs, with spacious interiors and high-end finishes throughout. 3 Spacious Bedrooms, Open Concept Living, Ensuite & Walk-In Closet. (id:5764)